El
arte paleocristiano hace referencia al arte que floreció en
el periodo temprano del cristianismo, es decir, en el tiempo transcurrido
entre su aparición como hecho religioso-cultural y la generalización
de esta doctrina por todo el territorio ocupado por la tradición
romana. En su desarrollo cabe distinguir dos etapas, separadas por
el Edicto de Milán, en el 313. La primera comprende la época
en que el cristianismo se desarrolla clandestinamente bajo el imperio
romano, siglos I al III. La segunda etapa comienza a partir de la
citada fecha, cuando Constantino declara al Cristianismo como religión
del Imperio Romano. Este período no se cierra con la destrucción
del Imperio Romano de Occidente en el 476, pues tanto en Oriente,
donde se funde con las formas iniciales del Arte Bizantino, como en
Occidente, donde coexiste con el arte de los pueblos bárbaros,
el arte paleocristiano persiste como tal, hasta entrado el siglo VII.
Los orígenes del arte cristiano, que iba a ser el de toda la
Edad Media, están relacionados con Oriente
y Egipto. Roma aparece solo con rotundidad en los
frescos de las catacumbas y en los relieves de los sarcófagos,
que si bien son ejecutados en Roma y en Occidente, su iconografía
revela, por lo menos para la interpretación de los asuntos,
un origen oriental. Y es que el civis romanus
era todavía hebreo, sin contaminación de latinidad.
Hay que tener en cuenta que en el siglo segundo, los cristianos de
Oriente deberían ser el elemento predominante en las iglesias
romanas.
El conocimiento del arte cristiano se inicia través de la pintura
de las catacumbas, pues es un hecho claro que no existe una arquitectura
anterior al impulso creador de Constantino y sus arquitectos. Hasta
la paz de la Iglesia no se encuentra una arquitectura cristiana que
constituya tipos artísticos concretos y tenga en ellos su funcionalidad
litúrgica explícita y apropiada. Las primeras iglesias
en Roma estaban en los hogares de cristianos. San Pablo, el Apóstol,
mencionó tales iglesias en Romanos 16, 3-5 donde él
saludó a Prisca y Aquila y ‘a la iglesia que está
en su casa’. Toda la Iglesia preconstantiniana se resume en
los famosos titulus romanus, que significaba
inscripción en piedra, y en donde el nombre del dueño
estaba generalmente inscrito en una losa de la puerta, por el que
se identificaban. Llamada también
loca
ecclesiasticae o domus eclesiae,
desde el siglo, III estos locales eran propiedad de las comunidades
y estaban situados en edificios privados, sin que se visualizara ningún
rasgo constructivo externo. Este estado de clandestinidad y de silencio,
va a cambiar radicalmente con el Edicto de Constantino en el 313 y
con el proteccionismo del Emperador y su familia, en especial de su
madre Santa Elena, al desarrollar una política directora de
la Iglesia que llevará a la monarquía teocrática.
Podemos decir que el siglo IV es el momento un tanto explosivo de
la arquitectura cristiana por impulso Imperial en Roma y en otros
lugares alejados, como son Palestina y Constantinopla,
sin olvidar Tréveris, ciudad del oeste de
Alemania o Aquilea, ciudad del noroeste de Italia,
cerca del Adriático. Pero este momento no creará tipos
fijos y seguros de arquitectura. Esto llegará en la segunda
mitad del siglo IV, cuando en Roma se repitan, hasta convertirlas
en norma, ciertas estructuras basilicales como San Pedro y San Pablo,
fijando arquitectónica y litúrgicamente, las variantes
creadas por los arquitectos constantinianos. A mitad del siglo IV,
Milán adquiere gran importancia por Galileo
y por albergar la corte hasta finales del siglo V, que será
trasladada a Rávena por Honorio. El arte iniciado en Milán
tendrá un gran propulsor en San Ambrosio, gran Obispo y pensador,
que lo llevará a nuevas y transcendentes creaciones arquitectónicas
de amplia difusión en Italia del Norte, la Provenza y Norte
de Hispania.
En
un principio, a lo largo del siglo IV, el poder de los emperadores
es absoluto. Será el propio Constantino el que inicie una política
constructiva, levantando enormes iglesias conmemorativas en los lugares
sagrados del cristianismo. (Roma y Constantinopla). El mismo Constantino
convierte a Constantinopla en capital del Imperio. A veces, estas
basílicas están asociadas al propio conjunto palacial.
Por lo general, estas primeras iglesias cristianas responden a unas
mismas características y posiblemente toman el modelo de edificaciones
romanas de carácter utilitario e ideológicamente neutro,
aunque se discute y es dudoso este origen de la basílica. Se
la cree también derivada de la casa romana,
de la sinagoga o de las basílicas
de culto oriental.
Hay que destacar que los dos monumentos únicos de tipo profano
construidos por Constantino en Roma, en lugar de traernos la solución
que demandábamos del enigma de procedencia, nos confunden,
porque uno, la basílica de Majencio, es abovedada,
y el otro, el Arco Triunfal de Constantino, es de
tipo tradicional, con sus tres puertas y sus entablamentos del más
estricto estilo helenístico romano. Cabe pensar ¿vacilaba
el Emperador? ¿Oscilaban sus funcionarios y arquitectos entre
la construcción de techo plano adintelado y la construcción
de bóvedas con empujes que requieren organizar el edificio
en un sistema de fuerzas y contrafuertes? Es probable que adoptaran
uno u otro, según las circunstancias.

También de la época de Constantino, cubiertas con techumbre
plana de madera y casetones, son las dos monumentales basílicas
construidas en los lugares donde sufrieron martirio los apóstoles
San Pablo y San Pedro. Una en la vía Ostiense, donde fue decapitado
San Pablo, la otra se elevó sobre las ruinas del circo de Nerón,
donde fue crucificado San Pedro, y se encontraba su sepulcro, según
cierta tradición. De ambas ha llegado suficiente documentación
de las sucesivas transformaciones hasta una época que permitió
estudiarlas. La de San Pablo sufrió un incendio
en 1850, pero fue reconstruida en su tipología basilical, al
menos, y la de San Pedro, aunque derribada en el
siglo XV porque estaba ruinosa y para dejar sitio a la Iglesia actual,
se tuvo cuidado de medirla y dibujarla con todos sus detalles. No
queda, por tanto, duda alguna de que las Iglesias de San Pedro y San
Pablo en Roma eran de planta basilical con naves separadas por columnas.

Según algunos autores, sin embargo, la pregunta de por qué
Constantino adoptó con preferencia planta
basilical rectangular en la mayoría de las Iglesias
que construyó, se contesta, mirando una sinagoga
moderna y leyendo la Constituo Apostolorum. Deducen que Constantino
subvencionó y patrocinó la construcción de iglesias
en Roma y en las provincias, pero eran los obispos de las localidades
los que cuidaban de los detalles de la forma de la planta.
Otros opinan que el cristianismo recibió ya logrado este tipo
arquitectónico y que no hubo sino una adecuación al
culto. En esta línea argumental, el templo cristiano se llamó
muy pronto basílica como referencia a Dios como basileus,
rey en griego y cumple las mismas funciones que la basílica
romana. Creen que se elige la basílica romana no solo
porque desde un punto de vista del interior sea amplia y acoge a un
gran número de personas, sino porque desarrolla funciones que
no desempeñaban otros edificios, aunque también se tomarán
en otro sentido como modelos. La basílica, que servía
para la administración de justicia, con su patio rodeado por
pórtico con columnas así como el alzado, va ser imitado
en la basílica cristina. Las salas termales, que como espacios
amplios que eran, tenían una sala central cubierta con cúpula,
se utilizaran de referencia.
El tipo de basílica romana creado a lo largo del siglo IV,
tendrá, tres naves con ábsides y cubierta a doble vertiente,
sin utilizar las bellas bóvedas de la arquitectura monumental
romana. Las naves están separadas por columnas y arcos, como
en las ruinas romanas de Split, Croacia,o en Leptis
Magna, único monumento romano que queda en Trípoli,
construida para hacerle honor a Marco Aurelio en el año 173,
y algunas veces la mayor altura de la nave central condiciona una
doble hilada superpuesta como en Leptis Magna o en
la Basílica Ulpía de la misma Roma.

Entre los templos romanos de más relevancia, que se van a proyectar
en la cultura cristiana, podemos citar al Templo de Vestas,
de planta centralizada, el Panteón de Agripa también
de este mismo tipo, que se quiso dedicar a los nueve dioses del panteón
romano y el Mausoleo de Adriano que sirvió
de recinto funerario y es de planta circular.

Hay autores que descartan las teorías anteriores. Argumentan
que hay que tener en cuenta que el primitivo templo cristiano es tenido
por la casa de Dios y que las primeras comunidades cristianas utilizaron
para sus reuniones las casa patricias, por lo que es lógico
pensar que los orígenes de la basílica han de hallarse
en las formas de una casa romana transformada, sin
que ello excluya ni la influencia de la sinagoga o de templos de culto
oriental, ni la idea de que la basílica pueda considerarse
como una solución sincrética de acuerdo con las necesidades
del culto. Pero sostienen que es innegable que todo el edificio está
regido por el esquema de la casa romana, en la que se reunían
para el ágape o comida de confraternidad.
En
cualquier caso, en la basílica cristiana en
donde va a desarrollarse un culto interior y de participación,
predomina el eje longitudinal y se obtiene la sensación de
movimiento hacia el altar. Las columnas guían la vista, pero
también la plenitud de los muros. El presbiterio queda enmarcado
por el arco de triunfo, es decir, una gran arcada de medio punto,
que ciertamente viene a emular el efecto triunfal de los arcos conmemorativos
romanos. Pero aquí el significado es religioso, es el triunfo
de la Iglesia lo que quiere representarse. Hay, por lo tanto, un espacio-tensión,
o espacio-camino, que será normativo en la arquitectura cristiana
medieval. Y es la nave mayor el eje de mayor tensión, hasta
el extremo de que las naves laterales actúan como meros pasillos.
El pueblo tiende a aproximarse hacia el presbiterio con objeto de
participar de manera más activa en el culto. Eso determinará
el desarrollo del crucero. Efectivamente, el muro se rompe por los
lados a la altura del presbiterio, formándose una nave transversal.
Es, desde luego, un resultado práctico, pero ello no impide
que se derive un efecto simbólico, ya que se ha formado una
planta en forma de cruz, de brazos desiguales, es decir cruz latina.
Y es que el templo cristiano, a diferencia del pagano, es a la vez
morada de Dios, recinto del culto y lugar de reunión de la
comunidad o de la asamblea cristiana.
Estas
funciones van a repercutir en la manera de concebir el edificio religioso
cristiano (basílica), dando más importancia al interior
que al exterior, que va ser más simple. Este interés
viene dado porque el exterior se relaciona con el cuerpo humano, materia
finita, y el interior con el alma que está animada por la luz
divina.
Hay
que tener en cuenta así mismo que los cristianos se organizan
de forma muy jerárquica y, en consecuencia, la organización
de la basílica cristiana refleja esta jerarquización
en pirámide. El ábside, o exedra en la basílica
romana, será para el obispo. Los neófitos que no están
bautizados, se colocan en el nártex o pórtico. Al interior
de la basílica entrarán los que están bautizados.
El espacio entre ambos, que es el que antecede a los coros catedralicios,
lo ocupan los cristianos y el espacio central de la basílica,
lo llena el clero intermedio. El presbiterio se reserva al clero superior.
Al
periodo inicial de la época de Constantino corresponden además
de las desaparecidas Basílicas de San Pedro,
de cinco naves, y la de San Pablo Extramuro, en principio,
de tres naves, después Teodosio haría una mayor que
la de San Pedro, ya citadas, la Iglesia de Santa Inés,
y la de San Lorenzo Extramuro, pequeño oratorio
en la época de Constantino, así como la de Santa
Maria la Mayor, para muchos autores la más antigua,
que sería en su origen una sala pagana construida en el siglo
III, auque no consta esa adaptación. También la de San
Juan de Letrán hoy en buena parte reconstruida, aunque
ha conservado bastante su aspecto original. La última reforma
interior fue hecha por Borromino, mientras que la fachada, es un añadido
del siglo XVII. Según algunos autores, Constantino regaló
al Papa el palacio de Sixtus Lateranus, erigiéndose en su lugar
la Basílica de San Juan de Letrán del
siglo IV. Fue la Iglesia principal y residencia de los Papas desde
Constantino hasta la construcción de San Pedro, 1313. Es una
iglesia de cinco naves, de cruz latina, con la nave central más
destacada y ancha, en relación con las naves laterales. De
estructura ligera de madera, con hileras dobles o par de hileras,
bóveda es de mosaico azul con adornos de volutas vegetales.
La estructura favorece que la visión vaya hacia la cabecera
debido a la sucesión rítmica de arcos. La decoración
y la arquitectura del interior pertenecen a la intervención
llevada a cabo en el XVI por Borromini. Hoy la iglesia es prácticamente
la que él imaginó y embelleció. Su enorme ábside,
fue restaurado en el XIX, en tiempos de León XIII. Los baptisterios,
que están separados del templo, tienen pilas circulares o poligonales
para el bautismo por inmersión.

A todas ellas, hay que añadir la gran basílica que se
hallaba ante el Santo Sepulcro en Jerusalén,
destruida por los persas en el 614, reconstruida posteriormente en
distintas ocasiones, y la Basílica de Belén,
con planta octogonal.


Después del periodo representado por Constantino, 350 a 550,
las comunidades cristianas de Oriente y de Occidente se desenvuelven
paralelamente en la búsqueda y desarrollo de un tipo de templo
cristiano, concretándose dos tipos de Iglesias diferentes.
La de planta latina derivada del tradicional tipo
basilical y la de planta de cruz griega de brazos
iguales o de plan central. El hecho fundamental es el dominio de la
bóveda. De tipo constantiniano son la basílica
de Santa Sabina en el Adventino, en Roma, de la que sus puertas
tan gran interés presentan, debido precisamente a su antigüedad,
San Juan de Estudión, en Constantinopla, San
Demetrio,en Salónica. De comienzos del Siglo VI es
la basílica de Santa Sofía de Salónica,
que ofrece la novedad de la bóveda y la cúpula en el
crucero por lo que se relaciona con el arte bizantino. También
es importante la de San Juan Evangelista en Rávena,
en las que aparecen las cámaras o sacristías, de influencia
oriental. Africa del Norte conoce una gran eclosión de arquitectura
paleocristiana, pues no en vano Roma había colonizado con gran
celo esta región. En los templos se advierte la aparición
de una ábside a poniente o contraábside, opuesto al
principal y que se suele dedicar a enterramientos.

El Occidente europeo aportó menos. Aunque
desde el siglo VI con los visigodos y merovingios se operó
un resurgir constructivo. En España predomina el plan basilical.
Ejemplo de ello tenemos en las iglesias baleáricas de Son
Peretó en Mallorca y Son Bon en Menorca.
Se usa el contraábside en la casa Herrera de Mérida
y se da el tipo de cruciforme exento en la iglesia de Zorita de los
Canes de Guadalajara y el mixto, en el que se junta la basílica
con una cruz latina,en la iglesia de Segóbriga
en Cabeza de Griego en Cuenca. También hay que citar la iglesia
basilical, de una nave, de Vega del Mar, San
Pedro Alcántara en Málaga, con dos ábsides
contrapuestos.

En Oriente y Egipto hay una arquitectura
paleocristiana de extraordinario interés y de mayor transcendencia,
quizás que la occidental. Se forma con las peculiares características
de lo romano helenístico tardío en ciudades como Alejandría
y Antioquia, la tercera ciudad del Imperio. Aquí se prefieren
las plantas circulares, poligonales y de cruz griega, de brazos iguales.
Se usan bóvedas y cúpulas sobre pechinas. Presentan
rica decoración pintada, de mármoles de colores y mosaicos.
Del tipo de basílica constantiniana es la célebre iglesia
de la Virgen Maria de Efeso.
El principal foco de edificios monasteriales se sitúa en Siria.
Se desarrolla una nueva concepción tectónica de los
edificios basada en el sabio sistema de contrarresto de los empujes
de las bóvedas a base de contrafuertes exteriores que apoyan
los muros, sosteniendo los apoyos exteriores. En Deir Semaan
se encuentra el Monasterio de San Simeón el Estilita
la más colosal edificación monástica Siria. Este
edificio, hoy una masa imponente de ruinas suficientemente conservadas,
en medio del desierto, en las que se puede reconocer aún las
partes de que constaba, tiene interés arquitectónico
por los elementos empleados como ornamentación, tales como
arcos ciegos, columnas adosadas, ménsulas y otros variados
temas, que posteriormente serán usados como decoración
en la arquitectura romana y bizantina. También las Iglesia
de Turmanin, y Bora y el desaparecido Santo
Sepulcro de Jerusalén.

Los baptisterios, en occidente serán de planta
circular o hexagonal y estarán próximos a la iglesia,
pero exentos, mientras que en oriente, serán pequeñas
salas de planta cuadrangular unidas al templo. En principio se construían
para dedicarlos a la ceremonia del bautismo, convirtiéndose
más tarde en templos normales. El baptisterio de Neonia
o de los Ortodoxos en Rávena.
Los mausoleos suelen ser de planta circular, muy
suntuosos. En Roma están los de Santa Elena
y Santa Constancia, con un pequeño pórtico
en la entrada, cubierto con cúpula sostenida por columna dobles
y arcos de medio punto, con galería en torno al espacio central
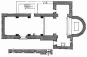
donde se sitúa el cuerpo de la santa. En Rávena, el
de Gala Placidia fue construido por orden de la princesa
entre los años 425 y 450, es uno de los edificios más
representativos del arte paleocristiano. El más antiguo de
los monumentos de planta cruciforme, cuyo interior está decorado
de mosaicos de distintos colores. Lo construyó para albergar
los restos de su familia, la de su marido Constacio II y la de su
hermano Honorio, fallecido en el Mausoleo de San Gedeón,
en Alemania, de planta oval, con capillitas semicirculares.


Los martyrias, cuyo precedente es el mausoleo, son
edificios destinados al culto a las reliquias y a la conmemoración
de los mártires. Para este tipo de edificio se utiliza, por
lo general, edificios de planta central, bien de tipo circular, cruciforme
o poligonal. Se cubre con cúpula por ser este un elemento cargado
de simbolismo. También va a influir la leyenda mantenida de
que la tumba de Cristo era de forma circular. En España del
siglo IV es el martyrium de la Alberca, en Murcia.
La cripta situada en el subsuelo se halla totalmente cerrada. Deriva
del mausoleo de Marusinac en Dalmacia, pero es el antecedente de la
Cámara Santa de Oviedo. Monumento relevante es el mausoleo
de Centelles en Tarragona. Consta de dos cámaras cuadradas,
cubiertas con cúpulas. Una de las cámaras posee la cripta,
bajo la cual hay otra, subcripta.

Bibliografía
- Ariés, Ph. Y Duby, G.: Del Imperio romano al año
mil, Taurus, Madrid, 1987.
- Bovini, Giuseppe, Ravenna.: Citta d'arte. Ravenna, Edizioni
A. Longo, 1970.
- Krautheimer, Richard.: Arquitectura paleocristiana y bizantina,
Madrid, Cátedra, 1992.
- Martín González, J.J.: Historia del Arte.
Editorial Gredos, Madrid, 1974.
- Robertson, D.S.: Arquitectura griega y romana, Ed. Cátedra.
Col. Arte. Grandes temas, Madrid, 1988.
- Ward-Perkins, John B.: Arquitectura romana, Aguilar. Col.
Historia Universal de la Arquitectura, Madrid, 1990.
- Zovatto, Paolo Lino.: Il Mausoleo di Galla Placidia, architettura
e decorazzione, Edizioni A. Longo, Ravenna, 1968.
__________________________
DATOS
DE LA AUTORA:
Remedios García Rodríguez, Profesora
de Educación, Licenciada por la Universidad Complutense de
Madrid (1968), Licenciada en Psicología por la Universidad
Pontificia de Salamanca (1969), Master en Psicología por la
UNED de Madrid (2000). Inspectora de Educación en las Autonomías
de Euskadi y Andalucía desde 1980. Redactora de Homines.com.